De interactive room layouts van Philips zijn ontworpen om zowel architecten, ingenieurs en aannemers als het personeel van een instelling een idee te geven van de belangrijkste implicaties van het installeren van een Philips-beeldvormingssysteem.
Hier kunt u room layouts downloaden in PDF-formaat en, indien beschikbaar, in DWG- en IRL PDF-formaat.
Bedenk dat deze bestanden weliswaar uitermate nuttig zijn, maar niet specifiek zijn ontworpen voor een bepaalde vestiging. Ze zijn dan ook niet geschikt voor aanbestedingsdoeleinden.

Onze tekeningen geven u een beeld van:
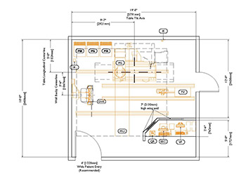
Mogelijk bent u in bepaalde gevallen niet bekend met de beeldvormingsapparatuur die uw instelling wil installeren. Onze interactive room layouts (IRL's) laten u zien hoe de apparatuur eruitziet in een standaardindeling.
Elke IRL omvat:
Opmerking: vanwege de grootte van deze bestanden kan het downloaden enkele minuten duren.

You are about to visit a Philips global content page
Continue